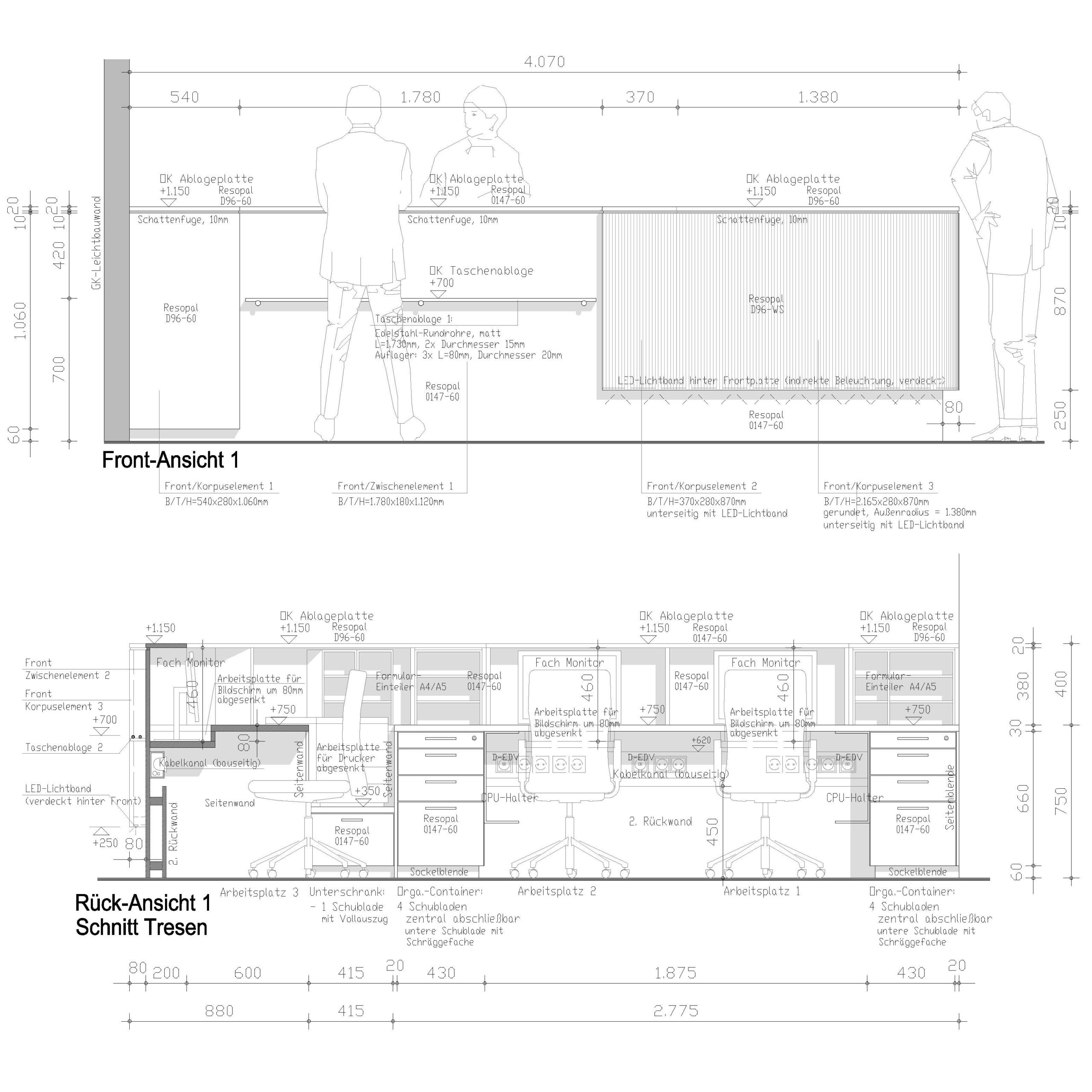
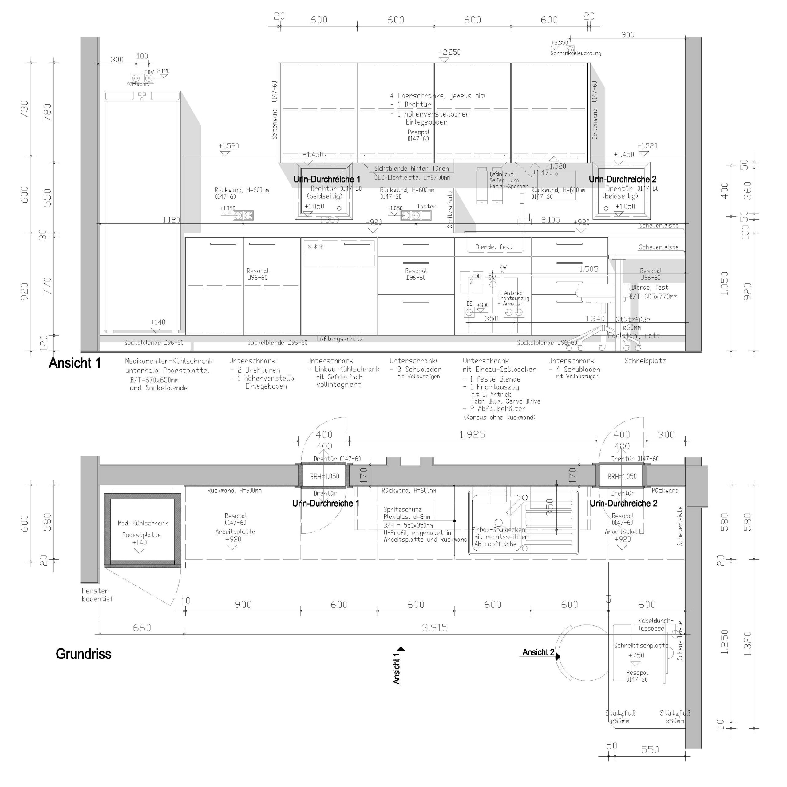
Einrichtungsplanung